Architect Floor Plans Layout

Architect Floor Plans Layout. By aligning the pieces, we have created a large pathway for accessing all the fixtures in a much more intuitive, functional way. Tejjy inc being experienced architectural and engineering companies facilitates accurate 3d floor plans for residential and architectural projects.

2D Floor Plan Design / Rendering Samples / Examples
2D Floor Plan Design / Rendering Samples / Examples from the2d3dfloorplancompany.com

From traditional to modern to country homes, browse our complete collection of architectural house plans and get one step closer to building your dream home. This panel layout will include all relevant details like skylights, roof vents, wire pathways, walking pathways etc, and keeping provisions for them. Office layouts and office plans are a special category of building plans and are often an obligatory requirement for precise and correct construction, design and exploitation office premises and business buildings.

Smartdraw's Floor Plan App Helps You Align And Arrange All The Elements Of Your Floor Plan Perfectly.

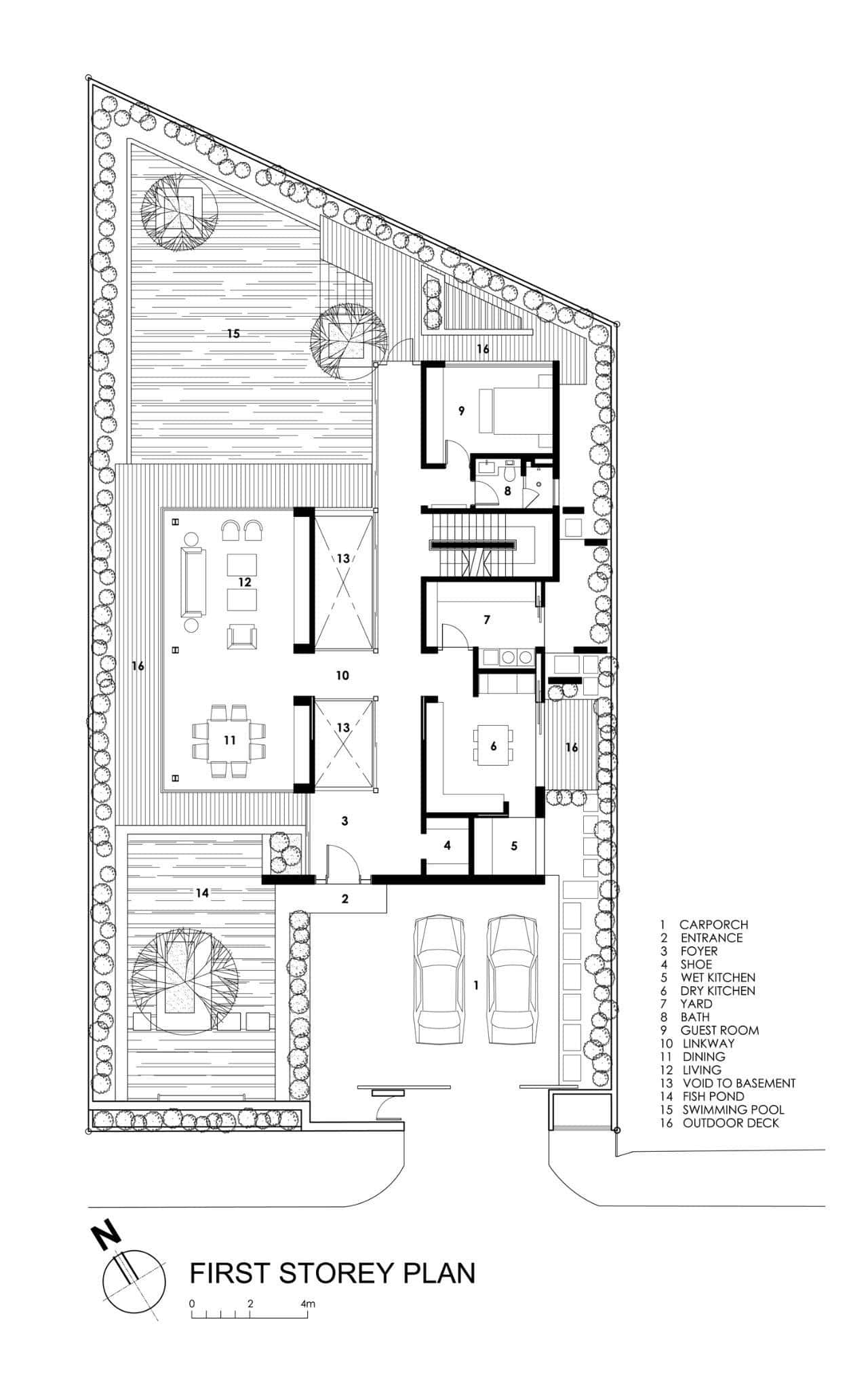
These will be drawn in separate layers in autocad. Floor plans allow potential buyers and investors understand the essence of a property, its spaces, and their interaction with each other. Floor plans are architectural drawings and diagrams that show the layout of a structure.

It May Also Include Measurements, Furniture, Appliances, Or Anything Else Necessary To The Purpose Of The Plan.

If you look at the before image of the two layouts, you can see three empty gaps. Ad from first home builders through to luxury designs on this easy to use site Please contact me separate for ground mounted ones.

Find The Curb Appeal You Desire Matched With The Interior Layout You Need.

You can set the size of any shape or line by simply typing into the dimensions label. The floor plan may depict an entire building, one floor of a building, or a single room. Floor plans are used in architecture and engineering to map out the scaled dimensions of all the different rooms and components of a structure.

See More Ideas About Layout, How To Plan, Floor Plans.

The floor plan organizes much of the visual information in the set, indexing and referring to other documents: On the other hand, more modern homes usually have open floor plans and shared spaces. It allows the engineer to understand where each component of the structure will lie to move onto his structural drawings.

With Our Wide Selection Of Home Designs, You’ll Be Able To Find Multiple Plans In Almost Any Style Imaginable.

Office layouts and office plans are a special category of building plans and are often an obligatory requirement for precise and correct construction, design and exploitation office premises and business buildings. Edraw is the best easy to use architectural layout software that allows business or individuals to design floor plan, office layout and building plan. Floor plan layout design service.

Check Also

Tiny Coffee Shop Floor Plan

Tiny Coffee Shop Floor Plan. And when it comes to sustainability, it’s hard to beat—real …