Eighty Seven Park Floor Plans

Eighty Seven Park Floor Plans. This miami real estate and condo complex offers you some of the best in luxury and waterfront. Eighty seven park floor plans.

Floor Plans Eighty Seven Park Condos For Sale
Floor Plans Eighty Seven Park Condos For Sale from eightysevenparkcondos.com

This is a floor plan you could choose to build within this community. Floor plan model ac2, line 01 at eighty seven park (87 park), surfside is 4 bedroom, 3,5 bathroom, residence unit, with 3,525 ft2 of living area, floor range from 15 to 17, priced at $ 9,400,000 ($ 2,667 per ft2), located at 8701 collins ave, surfside fl33154. Eighty seven park floor plans.

Expansive Open Floor Plans • Floor To Ceiling Glass Walls • Spacious Interiors And Amenities • Unparalleled Views Of Miami Beach.

Eighty seven park is a luxury miami condo located at 8701 collins avenue miami beach fl 33154, and is a luxury property in miami beach that offers exceptional amenities. An architect with a poetic touch. Trust your instincts when it comes to the floor plan as you know what will work best for your needs.

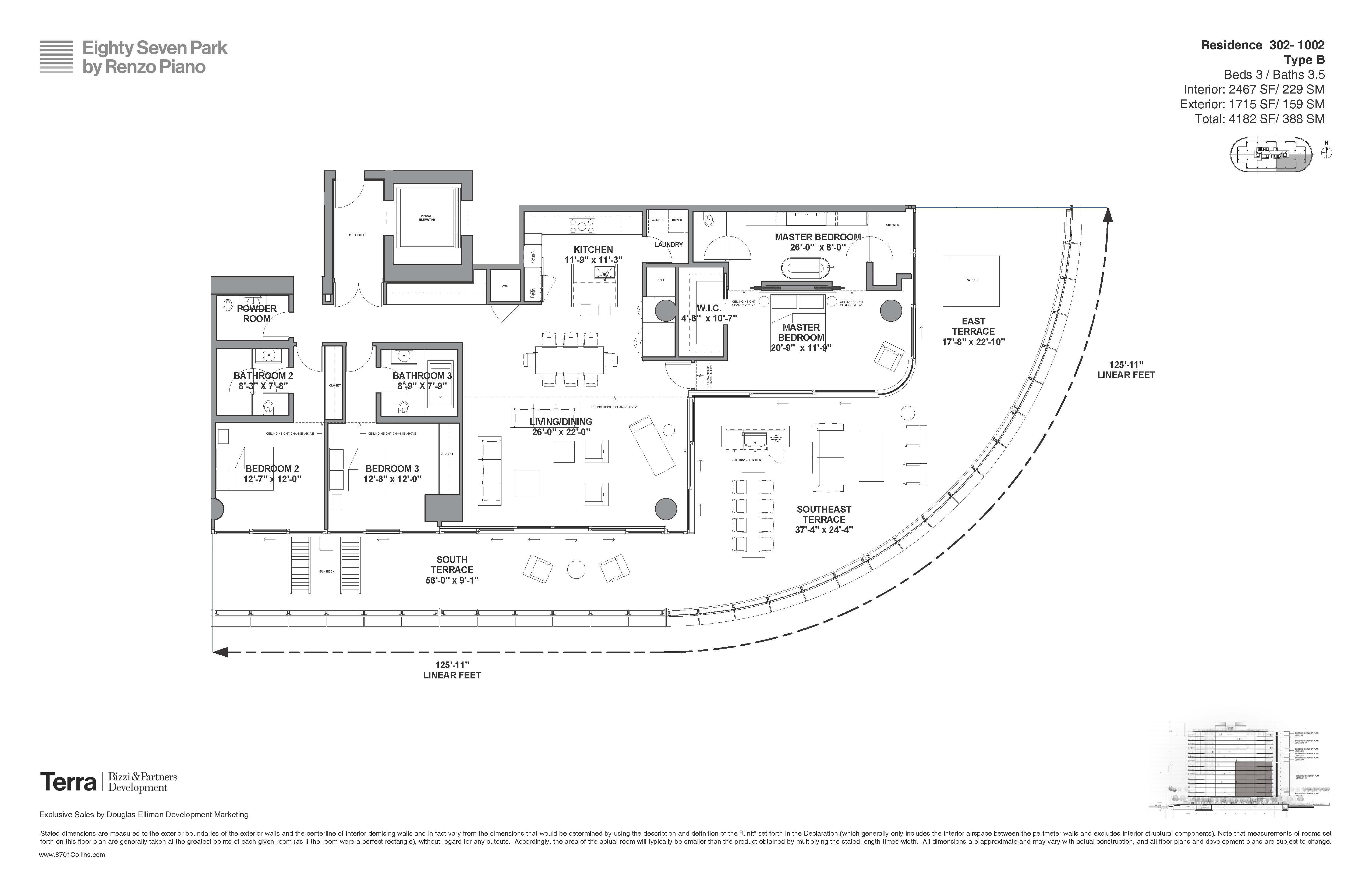
Unit 601 Plan, Eighty Seven Park, Miami Beach, Fl 33154.

Eighty seven park in miami beach. Eighty seven park offers unobstructed views of park and ocean in addition to views of biscayne bay. At eighty seven park, it’s a commodity that can be found in abundance, inside and out.

Ad From First Home Builders Through To Luxury Designs On This Easy To Use Site

Eighty seven park is a new condo development by bizzi & partners development and terra group in surfside, fl. Zilbert works with buyers and sellers at eighty seven park, and eighty seven park was built in 2020. There are 4 different 2 bedroom models, click links below to view floor plans.

You’ll Work With The Builder To Select From The Plan Options And Find The Right Lot To Construct Your Dream Home.

This is a floor plan you could choose to build within this community. The eighty seven park units range from approximately 800 to over 8,000 square feet spanning over different floor plans. A serene paradise on the edge miami beach.

Located On The Edge Of Parkland And Atlantic Ocean, Eighty Seven Park Creates A Fresh Dialogue With The Vibrant Community Of Miami Beach.

Eighty seven park is the newest condominium directly on the sand in surfside. Eighty seven park condo overview. The building will feature condo floor plans with 1 to 4 bedroom residences and penthouses.

Check Also

Tiny Coffee Shop Floor Plan

Tiny Coffee Shop Floor Plan. And when it comes to sustainability, it’s hard to beat—real …