Small Fire Station Floor Plans

Small Fire Station Floor Plans. The nzfs operates out of approximately 440 fire stations around new zealand. New fire station design standards.

Kensington (Aspen Hill) Fire Station 25
Kensington (Aspen Hill) Fire Station 25 from www.montgomerycountymd.gov

In lincolnton, north carolina, the city hall and fire station were designed and built in the 1970s and were separated by about 100 feet, newell says. The fire station design manual (fire) version: Fire station construction can be challenging and costly, but you can make it much easier and more affordable when you use a pole building kit.

Fire Station Architecture And Design.

A fire station is part of the critical infrastructure for a community, so one should give careful thought to the use of the station and design. The cost of an elevator for two floors is usually between $40,000 and $60,000. Morton buildings has constructed thousands of fire stations, ems facilities, public use buildings, and municipal storage facilities.

We Have Included The Old Plans At The Bottom Of The Page As Well To Allow For Comparisons To The New Plans.

The station uses cultured stone, masonry, cast concrete, red overhead doors, and a hipped roof. Image 26 of 26 from gallery of fire station in houten / samyn and partners. In addition to being significant community assets, these buildings are critical to maintaining the emergency

We Are Currently In Beta Version And Updating This Search On A Regular Basis.

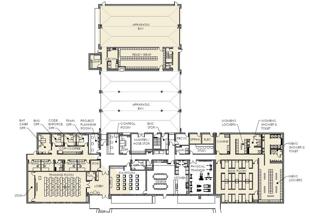
Tennessee has no minimum laws, rules, or regulations on the construction of a fire station except that the building must meet the minimum. New fire station design standards. Fire turn out gear decon bunk #3 bunk bunk #1 ess line officers asst.

Design Standards Can Create Efficiencies And Save Money, But.

Fire station architecture and design. Even for a small office or small commercial building designs would vary, and architects need to. Neotraditional design can not only affect the design of a new station, but also the size of fire apparatus that would be housed in the new station.

The Aia Has A Position On Using Stock Plans For School Designs That Could Apply To Fire Stations Also:

In lincolnton, north carolina, the city hall and fire station were designed and built in the 1970s and were separated by about 100 feet, newell says. Below are the updated site plan, elevations and floor plan for the proposed litchfield fire station. Fire station construction can be challenging and costly, but you can make it much easier and more affordable when you use a pole building kit.

Check Also

Tiny Coffee Shop Floor Plan

Tiny Coffee Shop Floor Plan. And when it comes to sustainability, it’s hard to beat—real …